3354 Mainsail Crescent Mississauga, Ontario L5L 1H2

4 Bedroom 2 Bathroom 1,100 - 1,500 sqft
Central Air Conditioning Forced Air

$885,000

Beautifully maintained 4 bedroom semi-detached home in highly desirable Erin Mills, offering the perfect blend of space, style, and location. Great family location with two parks right at the end of the street. This home has been thoughtfully updated throughout, is move-in ready, and designed for comfortable everyday living. The renovated eat-in kitchen features butcher block style wood countertops, stainless steel appliances, and brand new cabinetry. The beautiful new engineer hardwood floors create a modern setting throughout the whole main level. The bright open concept living/dining area has a large window and glass sliding door walking out to the backyard. Enjoy your summers in this private backyard featuring a wood deck with a gazebo, and ample space for the kids to play Four spacious bedrooms upstairs provide plenty of room for growing families, home offices, or guest accommodations. The finished basement adds valuable extra living space, perfect for a recreation room, playroom, gym, media area, or office. Close to excellent schools, parks, trails, shopping, transit, Credit Valley Hospital, Erin Mills Town Centre, Erindale & Clarkson Go Stations, and UTM Mississauga Campus. This is an exceptional opportunity to own a wonderful family home in one of Mississauga's most established communities. Easy access to highways 403, 407 & QEW. Main floor hardwood'26, Kitchen renovations '26 Furnace'25, AC heat pump'25, Shingles'22, Bathroom Renovation '21, 2nd floor windows'21, Living Room Window & Patio Door'19. (id:50787)

Open House

This property has open houses!

April
26
Sunday
Starts at:

2:00 pm

Ends at:

4:00 pm

Property Details

MLS® Number W13035390
Property Type Single Family
Community Name Erin Mills
Equipment Type Water Heater
Parking Space Total 3
Rental Equipment Type Water Heater

Building

Bathroom Total 2
Bedrooms Above Ground 4
Bedrooms Total 4
Appliances Dishwasher, Dryer, Freezer, Microwave, Stove, Washer, Window Coverings, Refrigerator
Basement Development Finished
Basement Type Full (finished)
Construction Style Attachment Semi-detached
Cooling Type Central Air Conditioning
Exterior Finish Brick
Flooring Type Hardwood, Parquet, Carpeted
Foundation Type Concrete
Half Bath Total 1
Heating Fuel Natural Gas
Heating Type Forced Air
Stories Total 2
Size Interior 1,100 - 1,500 Sqft
Type House
Utility Water Municipal Water

Parking

Attached Garage
Garage

Land

Acreage No
Sewer Sanitary Sewer
Size Depth 124 Ft ,6 In
Size Frontage 30 Ft ,1 In
Size Irregular 30.1 X 124.5 Ft
Size Total Text 30.1 X 124.5 Ft

Rooms

Level Type Dimensions
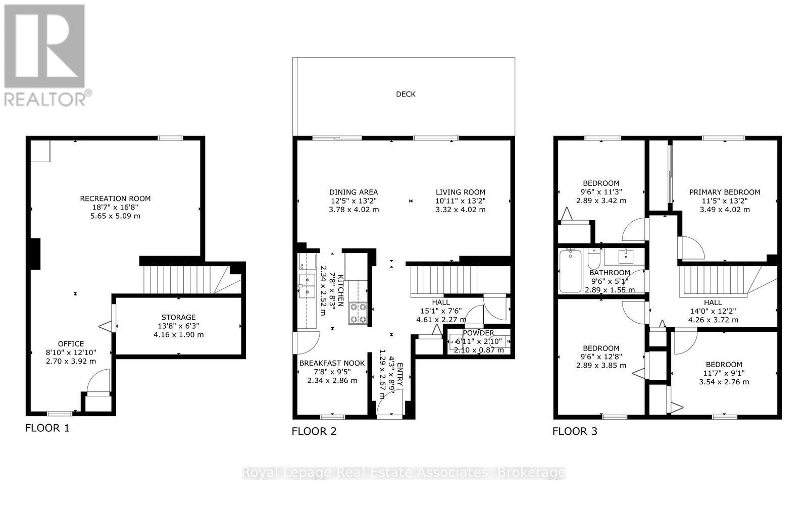
Second Level Primary Bedroom 4.02 m x 3.49 m
Second Level Bedroom 2 3.54 m x 2.76 m
Second Level Bedroom 3 3.85 m x 2.89 m
Second Level Bedroom 4 3.42 m x 2.89 m
Basement Recreational, Games Room 5.65 m x 5.09 m
Basement Office 3.92 m x 2.7 m
Main Level Kitchen 2.52 m x 2.34 m
Main Level Eating Area 2.86 m x 2.34 m
Main Level Dining Room 4.02 m x 3.78 m
Main Level Living Room 4.02 m x 3.32 m

https://www.realtor.ca/real-estate/29646503/3354-mainsail-crescent-mississauga-erin-mills-erin-mills

Your Favourites

 

No Favourites Found

 

error: Content is protected !!

Pin It on Pinterest